Nó được tạp chí kiến trúc hàng đầu thế giới ArchDaily nhận xét là nổi bật hơn hẳn những căn nhà “cá mòi” xung quanh.
- Không thể rời mắt khỏi mẫu bàn ăn mặt đá đầy cảm hứng
- Gợi ý bàn ăn mạ PVD hiện đại cho
căn hộ, chung cư
- Trang trí nhà bếp với mẫu bàn ăn mạ vàng được nhiều
người yêu thích
- Chọn bàn ăn mạ titan làm sáng bừng
không gian nhà bếp

Thủ đô Hà Nội đất chật người đông, những căn nhà ống đã trở nên quá đỗi quen thuộc và hầu hết chúng đều có kiến trúc na ná nhau với bề rộng hẹp và chiều dài quá sâu. Trang tạp chí ArchDaily đã mô tả những căn nhà ống như thế chẳng khác nào những chú “cá mòi”, nằm san sát nhau, chen chúc trong các ngõ nhỏ dài và sâu thăm thẳm.

Tuy nhiên, căn nhà ống mà chúng tôi giới thiệu hôm nay lại là một ngoại lệ.

Dù nằm sâu trong một ngõ tối ở Định Công, căn nhà vẫn sáng, đẹp và vô cùng thoáng đãng.

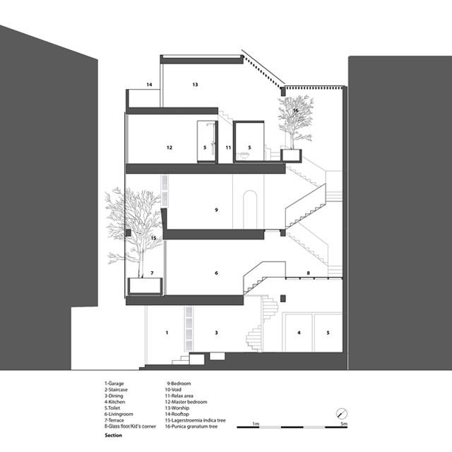
Căn nhà được xây dựng trên mảnh đất có diện tích 30 m2 (3 x 10 m). Ấn tượng đầu tiên khi bước chân vào công trình đó là sự thoáng đãng và tràn ngập ánh sáng tự nhiên.

Thay vì sắp xếp không gian sống theo chiều sâu như đa số các căn nhà ống khác, gia chủ của ngôi nhà này đã bố trí các phòng chức năng theo chiều dọc, nới lỏng mọi giới hạn thường thấy.

Tầng 1 chỉ được sử dụng làm chỗ để xe và bếp ăn thay vì “nhồi” thêm phòng khách.

Khu vực tiếp khách được đẩy lên tầng 2.

Đây cũng là nơi vui chơi cho trẻ nhỏ. Gia chủ cố ý để lại một góc trống để biến nó thành tiểu cảnh, vừa giúp không gian không bị nhồi nhét quá nhiều chức năng, vừa mang lại sự trong lành, thông thoáng cho khu vực sinh hoạt chung.

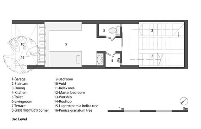
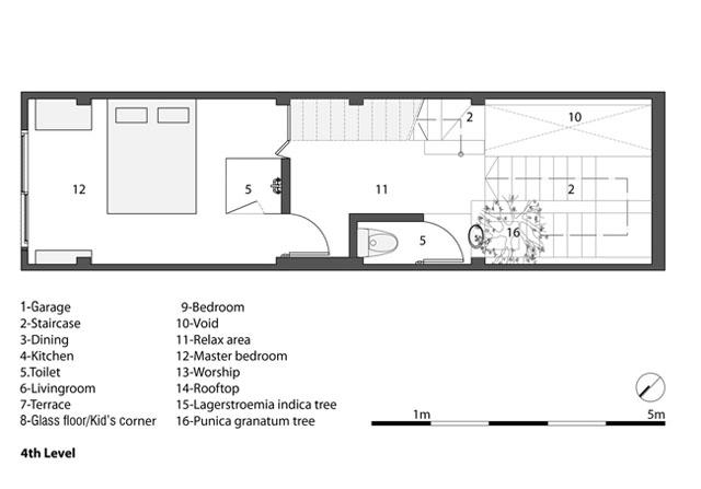
Tầng 3 và 4 là nơi nghỉ ngơi của cả gia đình.

Giếng trời được đẩy về phía sau để cân bằng ánh sáng, thông gió cho khu vực thường là bí bách nhất trong các căn nhà ống.

Tận dụng ánh sáng từ giếng trời, gia chủ trồng thêm cây xanh ở dưới, giúp không gian trở nên mềm mại, tự nhiên hơn.

Toàn bộ tường được sơn màu trắng giúp tạo cảm giác rộng rãi và sáng sủa hơn.

Nếu đi vào chi tiết, ngôi nhà này không có quá nhiều điều đáng nói vì chủ nhà tập trung vào sự tối giản để giữ cho không gian luôn thoáng đãng nhất có thể.

Tuy nhiên, về tổng thể, thiết kế thông minh giúp xóa tan định kiến về nhà ống của nó là rất đáng để học hỏi.

Bản vẽ mặt cắt dọc của ngôi nhà.

Bản vẽ tầng 1.

Bản vẽ tầng 2.

Bản vẽ tầng 3.

Bản vẽ tầng 4.
Hãy Comment chuẩn SEO vừa làm tốt cho site của Bạn vừa không bị GOOGLE phạt. Nếu muốn lấy backlink hãy chèn URL không chèn code gắn text link. Biểu tượng hài hướcEmoticon