Sự hòa quyện của ngôn ngữ kiến trúc hiện đại và chất liệu xây dựng truyền thống tạo nên công trình “có 1 không 2”.
- Không thể rời mắt khỏi mẫu bàn ăn mặt đá đầy cảm hứng
- Gợi ý bàn ăn mạ PVD hiện đại cho
căn hộ, chung cư
- Trang trí nhà bếp với mẫu bàn ăn mạ vàng được nhiều
người yêu thích
- Chọn bàn ăn mạ titan làm sáng bừng
không gian nhà bếp

Ngôi nhà này có tên là “Nhà V3”, tọa lạc tại thành phố Vinh, tỉnh Nghệ An.

Mới đây, trang tạp chí kiến trúc hàng đầu thế giới ArchDaily đã đăng tải những hình ảnh về kiến trúc độc đáo của ngôi nhà và dành cho nó khá nhiều lời khen ngợi.

Theo ArchDaily, “Nhà V3” như một “góc nhỏ yên bình giữa lòng thành Vinh xô bồ, hiện đại. Đó là không gian yên tĩnh giúp con người tìm kiếm sự cân bằng”.

Căn nhà có vẻ ngoài độc đáo, nổi bật hơn hẳn những công trình xung quanh.

Bức tường gạch mộc lớn, mái vòm cong cùng dàn dây leo thanh mảnh tạo nên vẻ ngoài vừa thô mộc, cứng rắn lại vừa mềm mại, dịu dàng.

Thiết kế này mang đến cảm giác ngôi nhà giống như một hang động tự nhiên, hoang sơ giữa lòng phố thị ồn ào.

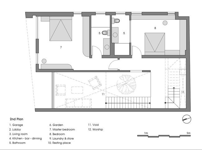
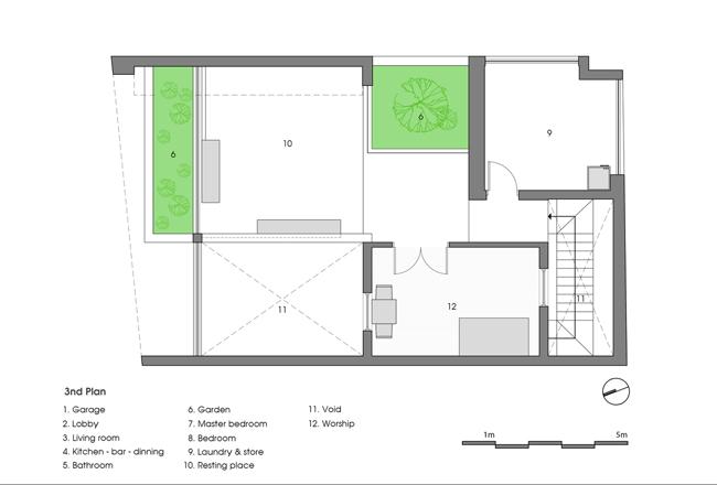
Căn nhà được xây trên mảnh đất có diện tích 133m2 với thiết kế liền khối 3 tầng.

Tầng 1 là phòng khách, bếp, bàn ăn và 1 phòng ngủ khá rộng.

Tầng 2 và 3 là khu vực nghỉ ngơi và phòng thờ.

Phòng khách thoáng rộng, sàn lát gạch màu đá lạnh, đối lập với nội thất gỗ nâu ấm cúng.

Các bức tường được giữ nguyên gạch thô mộc.

Căn nhà không có quá nhiều đồ đạc và cũng không tập trung vào các tiểu tiết cầu kì.

Thay vào đó, kiến trúc mở hướng con người tới gần với thiên nhiên hơn, giúp không gian sống tràn ngập ánh sáng, gió trời và không khí tự nhiên trong lành thoáng đãng.

Ban công tràn ngập cây xanh. Hệ thống cửa kính cường lực lớn giúp nhà lúc nào cũng ngập sáng.

Khu vực tầng áp mái.

Bản vẽ mặt cắt dọc của ngôi nhà.

Bản vẽ mô phỏng mặt tiền căn nhà.

Bản vẽ mặt cắt ngang tầng 1.

Bản vẽ mặt cắt ngang tầng 2.

Bản vẽ mặt cắt ngang tầng 3.
Hãy Comment chuẩn SEO vừa làm tốt cho site của Bạn vừa không bị GOOGLE phạt. Nếu muốn lấy backlink hãy chèn URL không chèn code gắn text link. Biểu tượng hài hướcEmoticon